Kugelhähne aus PP-H mit Schweißmuffen für industrielle Anwendungen bis PN 10
Die Kugelhähne aus PP-H mit Schweißmuffen in Industrieausführung sind für Betriebsdrücke bis PN 10 ausgelegt und bieten hohe chemische Beständigkeit, robuste Bauweise und langlebige Funktion. Die Schweißmuffen gewährleisten eine dichte und sichere Verbindung in PP-H-Rohrsystemen.
Die Ventile sind in allen Größen verfügbar und ideal für Industrie-, Prozess- und Chemieanlagen, in denen zuverlässige Absperrung und sichere Mediensteuerung erforderlich sind.
Produktvorteile:
-
Kugelhahn aus PP-H für PN 10 in Industrieausführung
-
Chemisch beständig und langlebig
-
Schweißmuffen für dichte, sichere Verbindung
-
Robuste Bauweise für industrielle Anwendungen
-
Voller Durchgang für minimalen Druckverlust
-
Alle Größen verfügbar
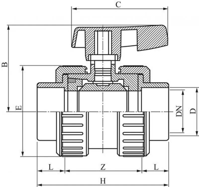
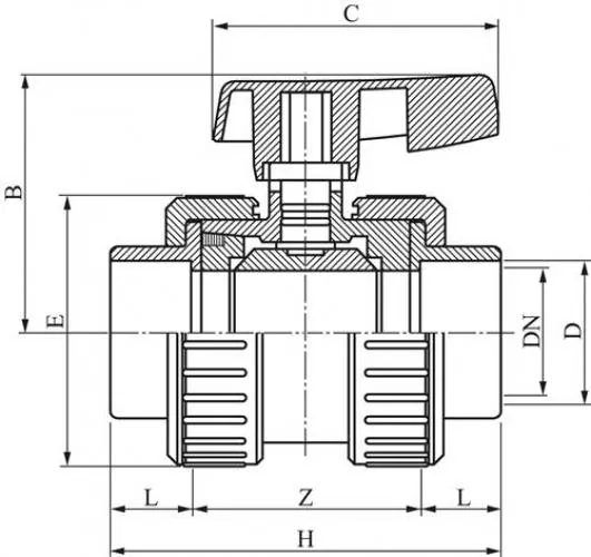
Technische Daten:
-
Bauart: 2-Wege-Kugelhahn
-
Material Gehäuse: PP-H (Polypropylen-Homopolymer)
-
Anschluss: Schweißmuffe
-
Max. Betriebsdruck: PN 10
-
Temperaturbereich: 0 °C bis +60 °C
-
Durchgang: voller Durchgang
-
Größen: alle Standardgrößen verfügbar
Einsatzbereiche + konkrete Verwendungsbeispiele:
-
Industrieanlagen: Absperrung chemisch aggressiver Flüssigkeiten
-
Prozessanlagen: Steuerung von Rohrleitungen in Industrieprozessen
-
Chemieanlagen: Langlebige, korrosionsbeständige Mediensteuerung
-
Sanitär- und Wasseraufbereitung: Sichere Installation in PP-H-Rohrsystemen
-
Service und Wartung: Austauschbare Ventile für langlebige Systeme
Vorteile:
•radial ein- und ausbaubar,
•ausspülsichere Kugel,
•optimale Durchflusseigenschaften
Temperaturbereich: 0°C bis +100°C
Werkstoffe: Gehäuse und Kugel: PP-H, Kugelsitz: PTFE
Betriebsdruck: 0 - 10 bar
Achtung: Nicht für Druckluft oder andere Gase unter Druck geeignet!
Hinweis zur Produktsicherheitsverordnung n. Richlinie 2001/95/EG
Das Produkt wurde vor dem 13. Dezember 2024 vom Hersteller auf den Markt gebracht und von uns auch schon vor dem 13. Dezember 2024 zum Verkauf angeboten. Es besteht Konformität des Produkts nach Richlinie 2001/95/EG
Produktbewertung:
Zu diesem Produkt sind noch keine Bewertungen vorhanden. Bitte bewerten Sie unser Produkt. Diese kann weiteren Käufern bei Ihrer Kaufentscheidung helfen. Vielen Dank!
Die Bewertungen werden nicht auf Ihre Echtheit hin überprüft!














.png)